收藏本站在线留言网站地图

欢迎来到东莞市鼎点娱乐塑胶制品有限公司官网,主营塑胶注塑模具加工厂家,精密医疗注塑件,家电电器外壳注塑件。
服务热线 13332680227(微信同号)

20年中高端品牌精密注塑件定制服务商

提供从产品设计/模具制造/注塑量产整套解决方案

鼎点娱乐塑胶:新闻 ·资讯天下,了解更多模具注塑价值资讯

热搜关键词: 塑胶制品 注塑件定制 注塑件加工 医疗注塑件

东莞鼎点娱乐智能电子注塑件加工模具设计

来源: | 责任编辑:东莞鼎点娱乐塑胶 | 发布日期:2021-03-08

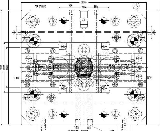
智能电子注塑件在当今社会得到广泛的应用更是各行各业,现东莞鼎点娱乐塑胶小编以一款智能手表注塑件为大家介绍智它的外壳注射模具设计要点。



98a3dc79-2217-4d53-8cb5-09a78bbcad46


这款智能手表外壳产品的外形尺寸为 37.36 mm x 38.80 mm x 8.60 mm,塑件平均胶位厚度 1.95mm,塑件材料 为 ABS,缩水率为 1.005,塑件质量为 3.89 克。塑件技术要求为不得存在披峰、注塑不满、流纹、气孔、翘曲变 形、银纹、冷料、喷射纹、气泡等各种缺陷,塑件成型中不得使用脱模剂。塑件侧面有 7 个侧孔,分别为表带安 装孔和调节按钮孔,分为两组,分别处在左右两个滑块上。


2

 智能手表属于消费性电子产品,对于塑件的外观有很高的要求。塑件在满足外观要求的前提下,还需要保持高的尺寸精度和几何精度,以满足装配后防水性能。通常能够成型注塑件的塑料有以下四种:POM、PA、 PC 和 ABS,智能手表外壳塑件采用 ABS 设计制造,正是利用了 ABS 材料能够成型塑件、具有优良的注塑成形性能和优良的喷油和电镀性能,能够满足好的智能手表对于外观美观性能的要求。塑件尺寸较小,但是精度很高。加之左右两侧需要设计滑块抽芯机构,因此模具设计型腔排位为 1 出 1. 模胚 为 CH2325,前后模仁材料均为 NAK80,是预硬化钢材中硬度和表面抛光性能好的钢材。在模仁的四角设计 10 ?的虎口,利于前后模仁确定定位。模胚上设计了 2 个锥形定位件 23,进行模具定位。模胚上方铁和动模板 以及底板之间增加了定位销,有利于保持模架刚性。为了适应日本模具的码模习惯,将模具的面板和底板进行加 长,因而码模方向为水平码模。这种码模方式是将模具水平推入,而不是采用将模具从注塑机顶部吊入。熔融塑料自主流道进入分型面后,沿分流道潜伏式浇口进入模具型腔,一点进胶。模具的顶出系统设计采用 顶针顶出。四组顶针分别处于塑件的四角,每组顶针分别由直径 0.9、1.2 和 2.0 的 3 支顶针组成。顶针材料为 SKH51, 属于高速钢耐热顶针。全套模具的标准件全部采用日本 MISUMI 标准件。顶针板上设计有中托司,为小直径顶针 提供导向。

1



顶针板底部设计有顶出镶块 26,增加顶针板刚性,防止顶针板变形,更为重要的是,该镶块可以缩短顶出行 程。有利于降低注塑周期。模具左右两侧滑块均为斜导柱驱动的滑块。由于塑件侧孔尺寸精度较高,需要设计成镶针,由滑块镶件 13 固定在滑块座 12 上。滑块底部设计耐磨板,便于藏油和降低摩擦系数。所有镶针全部氮化以提高硬度减少磨损。动定模均设计了冷却回路,对于稳定注塑生产,缩短注塑周期都有重要意义。对于智能手表外壳这样的小型塑件。其合理注塑周期应该在 20S 以下。


2大模具车间



东莞鼎点娱乐塑胶是一家多年专业从事模具设计制造及注塑制品生产集团企业,公司专注于为客户提供从产品设计、模具制造、注塑成型与组装、售后服务为一体整套解决方案,产品广泛应用于家用家电器外壳配壳配件、医疗医用器械注塑配件、化妆品包装注塑件等领域,欢迎来电咨询13332683013(微信同号)

【本文标签】 智能电子注塑件加工

【责任编辑】

最新资讯

分享按钮